The Narkomfin Building
As a third-rate intellectual nation with the most de-politicised working class in Europe, the UK has spent this 100th anniversary year self-satisfyingly dumping on everything we can about the Russian Revolution, while simultaneously shutting our eyes to the extraordinary creativity to which it gave birth – however short-lived – in poetry, literature, painting, sculpture, music, theatre, textiles, graphic design, photography, photomontage, cinema and architecture, and to which only the Italian Renaissance can be compared in modern times. Writing about Le Corbusier’s famous Marseilles Housing Unit recently led me to a building which – being neither an architect nor a scholar of architecture – I’d never heard of: the apartment block for the People’s Commissariat for Finance (Narkomfin) in Moscow designed by the Constructivist architect Moisei Ginzburg and his student Ignatii Milinis. Le Corbusier took some of his most influential ideas from this building, having first drained them of much of their socialist content; but while the 1952 Marseilles Housing Unit is celebrated in hundreds of books and visited by thousands of architectural students every year, the Narkomfin building, which was completed in 1930 when most British workers were living in terraced Victorian slums, has been left to rot, squatted by Moscow’s homeless, bought up by a property speculator, and now under threat of being ‘regenerated’ as luxury apartments or a hotel in Vladimir Putin’s Brave New Russia.
It was surprising to me just how much Le Corbusier’s Housing Unit shares with the Narkomfin building: the piloti that freed up the land beneath the building; the reinforced concrete columns that freed up the facade and placement of the interior walls; the flat roof that freed up the space for recreation; the ribbon windows allowing the maximum amount of light; the modular apartments interlocking above and below the internal streets; the double-height living space; the fitted kitchens in the larger apartments; and the on-site facilities – though not the communal kitchen and dining room: dismantling the bourgeois family was a revolution too far! Le Corbusier was open about his debt, and to be fair, he had articulated some of its principles in Towards an Architecture in 1923; but Western histories of architecture have erased Ginzburg from the public’s perception as effectively as the most powerful People’s Commissar for Enlightenment. Le Corbusier put it all together on a grand scale in an accessible holiday destination this side of the Iron Curtain and finished it all off beautifully; but the most revolutionary innovations came out of the ideas of Russian Constructivism and the Organisation of Contemporary Architects that had been co-founded in 1925 by Ginzburg, who envisaged the Narkomfin building as a model of collective housing that could be applied across the Soviet Union.
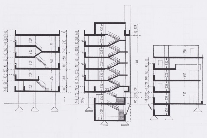
This didn’t, however, mean that it was welcomed by the Soviet government – quite the opposite. By 1930 Joesph Stalin’s grip on the Politburo was almost total, and as a product of Constructivism the Narkomfin building smelled of rebellion, avant-gardism, utopian leftism and permanent revolution – all things the Russian Revolution had initially embraced but which Stalin now denounced with a single, deadly word: ‘Trotskyism’. Ginzburg called the Narkomfin building ‘transitional type’ housing. While the two-bedroom maisonettes (K-type) for families on the first and second floors were self-contained, with their own kitchen and bathrooms, the interlocking, split-level, one-bedroom apartments (F-type) over the third, fourth and fifth floors, designed for single residents and childless couples, had their own toilet and shower cubicle, but residents had to use the communal kitchen and dining room in the adjoining annex, which is reached along an enclosed walkway from the first floor. The building was revolutionary, therefore, not only in form and structure but also in function, affecting the transition of its residents from a domestic life based around the bourgeois family to a properly collective mode of living.
This unmistakably associated the Narkomfin building with Trotskyism. In 1923 Leon Trotsky had published a volume of essays under the title Problems of Everyday Life: Creating the Foundations for a New Society in Revolutionary Russia, in which he wrote: ‘People cannot be made to move into new habits of life – they must grow into them gradually, as they grew into their old ways of living.’ The transition to socialism, in other words, was to be undertaken not by policies handed down by the Central Committee, but by changing the everyday habits of a Soviet citizenry that had only just emerged from a semi-feudal society. In 1927 this collection was expanded and republished as part of series called The Culture of the Transitional Period; but when, that November, Trotsky was expelled from the Communist Party, his books were removed from libraries across the Soviet Union. From now on there was to be no ‘transitional period’; under comrade Stalin the Revolution was complete, and there was no need for transitional housing when every member of Soviet society was already living in a communist utopia.
In 1930, the year the Narkomfin building was completed, and a year after Trotsky was finally expelled from the Soviet Union altogether, the Organisation of Contemporary Architects was dissolved, and the building soon began to suffer. The dynamic approaches and landscaped park designed by Ginzburg were replaced by an asphalted road between formal gardens in keeping with the neo-classical aesthetics of Stalinism; the flat roof, intended as a space for exercise and sunbathing, caught the eye of the Commissar for Finance, Nikolai Milyutin, an amateur architect who had commissioned the building and now turned the intended communal facilities into a penthouse for himself; residents in the F-type apartments began installing private kitchens whose cooking facilities they attached to the gas mains; and the freed-up land between the piloti was denounced as a waste of space amid the housing shortage and filled in with more apartments (just as it is on so many UK council estates today). It’s worth noting, too, that Ginzburg later admitted that the most popular apartments among residents were a third typology, the 2-F-type, which was a more conventional design with its own bathroom and kitchen, located at either end of the third, fourth and fifth floors, and accessed by the internal stairwells.
In the 1960s the apartment building was taken over by Moscow’s housing administration, while the communal annexe remained with the Soviet of People’s Commissars (SNK). Both blocks fell into disrepair, and the construction of the US Embassy next door in 1981 destroyed the last remnants of the park in which it had once stood. By the fall of the Soviet Union in 1991 the building was a mess, and only half the apartments were occupied. Exposed to the ‘freedom’ of the market, these were now purchased by the remaining residents, while the rest of building, including the basement and ground floor, stayed under the control of the city. Shortly afterwards, as the value of the land rapidly increased, a controlling interest in the apartments was purchased by the MIAN real-estate agency. This meant residents were unable to form a housing co-operative and manage the building independently of the municipal authorities. However, the agency’s plans to turn the building into a hotel met with strong opposition from both residents and admirers of the architecture. More recently the empty apartments have been leased to artists who found in the building not only cheap accommodation among Moscow’s spiralling rents, but a vestige of a time when art was in the service of the revolution, not the state. However, just as they do in the UK, the artists attracted a hipster clientelle, and a number of the apartments have been turned into commercial establishments, including a falafel shop, shisha lounge, and yoga studio.
Then last year 95 per cent of the building was purchased by Liga Prav LLC, who in a publicity gesture any of London’s Labour councils would recognise and admire, has employed the grandson of the original architect, Alexei Ginzburg, to oversee the restoration and adaptation. This year, Ginzburg Architects has published a series of architectural renderings of what the finished building will look like. The Narkomfin building is listed, which means returning it to its former, slightly shabby glory will incur considerable expense. Modern light-weight cement has been chosen to imitate the appearance of the poor quality of the materials used in the original building; the infill housing on the ground floor is to be removed, exposing the piloti; the residents’ lift – a 1950s addition to the stair-climbing original – will be replaced with a less intrusive version; even the original experimental colour schemes of the individual apartments are to be recreated; and the annexe for communal facilities is to be restored, with the glazed wall returned to its full expanse – although the kitchen, dining room, nursery, laundry and library contained in the original block will be replaced with a commercial cafe and other facilities open to the public. There is talk that one of the apartments will be turned into a museum for visitors.
The question, of course, is who will pay for all this. The restoration is being financed by Sberbank, a state-owned Russian banking and financial services company whose headquarters are in Moscow; and Liga Prav has said that the quickest return on their investment is to turn the residential block into luxury apartments for a similar demographic to that which today inhabits the Marseilles Housing Unit. But there is a possibility, too, that the building will become a hotel for the many architects and tourists who, much as they do to Le Corbusier’s building, will visit as part of what is now being marketed as the tour of ‘Constructivist Moscow’. As its name indicates, the Narkomfin building wasn’t built for the Soviet proletariat; but it was designed as a model of collective housing that was supposed to be exported across Moscow and the Soviet Union. By the time it was built, however, it was already too late.
The Politics of Formalism
Something similar is happening in the UK today, where the masterpieces of architectural modernism are caught between the bulldozers of local councils and the wallets of property developers. Park Hill estate in Sheffield, designed by Ivor Smith and Jack Lynn, evicted of its residents and left empty for 13 years, is being turned into a mixture of commercial units, artists’ studios and high-value apartments for connoisseurs of Brutalism by architectural practices Hawkins\Brown and Mikhail Riches; Ernő Goldfinger’s Balfron Tower in London, evicted of tenants and installed with artists by Poplar Housing and Regeneration Community Association, is being gutted and renovated by Studio Egret West fit for a pied-à-terre for the bankers in neighbouring Canary Wharf at whom its retro-glamour is being marketed by Hawkins\Brown; while last month it was announced that the neighbouring Robin Hood Gardens estate, designed by Alison and Peter Smithson, condemned to demolition by Tower Hamlets Labour council against widespread opposition in the architectural world and set to be redeveloped by Haworth Tompkins, has had one of its apartment modules purchased by the Victoria and Albert Museum, which will presumably one day put it on display as an example of how the working class once lived.
Yet despite this willing collusion of the architectural profession in the destruction of the legacy of their predecessors, it’s on the aesthetic judgements of Labour councillors and Conservative politicians that the modernist council estates of post-war Britain are being demolished as doomed experiments in socialism that willfuly imposed a Brutalist ‘style’ on Britain’s supposedly terrace-loving citizens. Before he was fired from the job, Michael Heseltine, the former head of the government’s Estate Regeneration National Strategy, said that the demolition of Robin Hood Gardens was justified because – as he explained in an interview with the Architects’ Journal this March – ‘I don’t like the look of it’. Looking, of course, is all he would ever have done, as I very much doubt that Lord Heseltine, despite making his early money as a London property developer, personally knows anyone who has ever lived on a council estate, or visited one without a retinue of bodyguards. But if aesthetic taste is an indicator of political change, Jeremy Corbyn and his followers should take heart, as it appears that, in a wave of nostalgia for what Labour councils are demolishing across London, the Brutalist architecture onto which several generations of politicians have displaced their fears of socialism and hatred of the working class has become the new look for the middle classes that are displacing it from our ‘regenerated’ inner cities. ‘Coming home’, as the Hawkins\Brown promotional video describes it, means evicting existing residents from their homes.
Le Corbusier drew up five points or principles of modernist architecture: pilotis bear the structural load of the building; the design of the façade is consequently freed from structural constraints; the resulting absence of supporting walls frees up the internal layout; the ribbon windows allow the maximum amount of light into the interior; and roof gardens protect the flat roof for recreational activities. But there is a sixth principle, which relates not to the form of modernist architecture but to its function: where the middle classes flock, architects follow. Like the Brutalist architecture that developed out of it, Russian Constructivism has for some time now been the hip reference for architects looking to sell their ‘revolution’ to the richest client; but in this 100th anniversary year of the Russian Revolution not a single show – to my knowledge – has looked at the enormous influence it has had on modernist architecture, or how its socialist principles have been stripped from what are now purely formal appropriations of a ‘style’.
As always, Zaha Hadid Architects has been at the forefront of this formalism, which is the defining ideology of art under late capitalism. Despite making stylistic references to it that are easily consumed by the art- and architecture-loving public, there is not the least element of Constructivism in either the MAXXI art museum in Rome (2009) or the Pierres Vives government building in Montpellier (2012) for the simple reason that Constructivism is not a style. On the contrary, Hadid’s architecture is the antithesis of the socialist principles of Constructivism. Quite apart from her willingness to work for anyone, from the President of Azerbaijan to the Saudi Royal Family, in response to criticisms of the working conditions under which her unrealised Al Wakrah football stadium in Qatar would have been built by the 1.8 million migrant workers who are kept without pay or employment rights in work camps with their passports confiscated in up to 50 degree celsius heat that Human Rights Watch has reported is killing them at a rate of one every two days and the International Trade Union Confederation has predicted will kill 7,000 construction workers on building sites in preparation for the 2022 Football World Cup, Hadid nonchalantly declared: ‘I have nothing to do with the workers. I think that’s an issue the government should pick up. It’s not my duty as an architect to look at it.’
But Zaha Hadid Architects are far from alone, either in their formalist appropriations from Constructivism or in their indifference to the social content of their architecture. I’ve lost track of the number of articles I’ve read in architectural magazines that wax lyrical about the formal qualities and fetishise the materials in yet another cultural centre, museum, opera house, sports stadium, financial institute, corporate headquarters or millionaires’ pad while ignoring its social context, the structure of its financing or its ideological function, whether it’s built in Saudi Arabia or London. The high-profile campaign to save Robin Hood Gardens by the Twentieth Century Society, which was supported by both Zaha Hadid and Richard Rogers, was based not on opposition to the social cleansing of its more than 700 residents from their homes but on outrage at the loss of a masterpiece of Brutalism. As with all fetishism, the obsessive focus of architectural discourse and practice on form and materiality serves to hide the all-too-human cost of its psychological, cultural and economic formation.
Last month, Moisei Ginzburg’s Dwelling: Five Years’ Work on the Problem of the Habitation – which was originally published in 1934 – was published in English translation for the first time. In a review of the book in the Architectural Review, the architectural historian wrote that it is a long overdue corrective to the misunderstanding of Constructivism as a ‘style’ that still dominates our perception of the art and architecture that came out of the Russian Revolution. This was encouraged and propagated by New York’s Institute for Architecture and Urban Studies, which in 1982 published what became the de facto manifesto of Constructivism for Western students of architects. This was Ginzburg’s 1924 treatise Style and Epoch, which appeared in a series with Le Corbusier’s contemporaneous Towards a New Architecture, and shared much of its stylistic theory of historical development in art and design.
35 years later, the architectural profession continues to heap accolades and awards on buildings like Herzog & de Meuron’s appropriately named Blavatnik School of Government in Oxford – another building that makes stylistic references to Constructivism, and like the Tate Modern extension is named after the Soviet-born oligarch, who donated £75 million to its construction. Its aim, according to the university’s website, is ‘to develop innovative and productive collaborations with governmental and non-governmental organisations, including private sector companies, that can help us stay connected with real-world challenges.’ The reviews of the building in the architectural press, however, ignored this nexus of private capital, public pedagogy and government policy to focus instead on the apparently fascinating fact that ‘the thick floor plates and spiral staircase that link each of the seven floors are cast from concrete, which has been mixed with warm-toned aggregate to mitigate some of the material’s typically cool hues.’ This is what architectural discourse and practice has been reduced to in this country; but we should never underestimate what political purpose is being served by this formalist conception of architecture. There is nothing so ideological as the claims of art to be ‘above’ ideology. As Richard Rogers, the former socialist turned designer of the Lloyds Building, the Millennium Dome, One Hyde Park and Neo Bankside, once said: ‘Architecture is always political’.
Simon Elmer
Architects for Social Housing


























Reblogged this on Anarchy by the Sea!.
LikeLike