In April of this year ASH visited the Unité d’habitation in Marseilles, the first and most influential of Le Corbusier’s ‘Housing Units’, which was completed in 1952 and repeated, with variations, in Nantes-Rezé (1955), in Berlin-Westend (1957), in Briey (1963) and in Firminy (1965). Itself considerably influenced by the Narkomfin building in Moscow (1930) designed by the Constructivist architect Moisei Ginzburg, Le Corbussier’s model of public housing had a huge influence on Brutalist architecture, and inspired the design of a large number of housing estates in the UK, including – to name just a few – the Park Hill estate (1961) in Sheffield, the Alton estate (1958), the Samuda estate (1965), Balfron Tower (1967), Trellick Tower (1972), Robin Hood Gardens (1972) and the Barbican estate (1981), all of which are in London. Ironically, the reinforced, rough-finished concrete (béton brut) from which the Housing Unit was constructed, and which gave its name to this movement in architecture, was necessitated because the steel frame Le Corbusier had envisaged using proved too expensive under the shortage of steel in post-war France.
In his early theoretical work, Vers une architecture (1923), Le Corbusier paid particular attention to the forms of ocean liners, finding in their matching of form to function the purism in design he sought to bring to modern architecture. As the plan of the Marseilles Housing Unit conveys, Le Corbusier envisaged this long, narrow building of 17 decks running parallel to the Mediterranean coastline as a sort of stationary ship, and many of its interior details make reference to nautical design. The wood and brass materials on the folding seat cum threshold to the apartment balconies recall those of a ship’s cabin, as does the wooden decking of the floors, the stairs, and the spiral staircase in the restaurant. And the extraordinary roof, which resembles a landscape by René Magritte, has ventilator shafts shaped like a ship’s smokestacks and a communal hall that looks like an upturned lifeboat. Above all, the self-sufficiency of the building – which originally had its own guest hostel, laundry, restaurant, grocer, butcher, barber, post office, clinic, nursery, kindergarten, gymnasium, children’s swimming pool, exercise space and running track – imitated the facilities within an ocean liner.

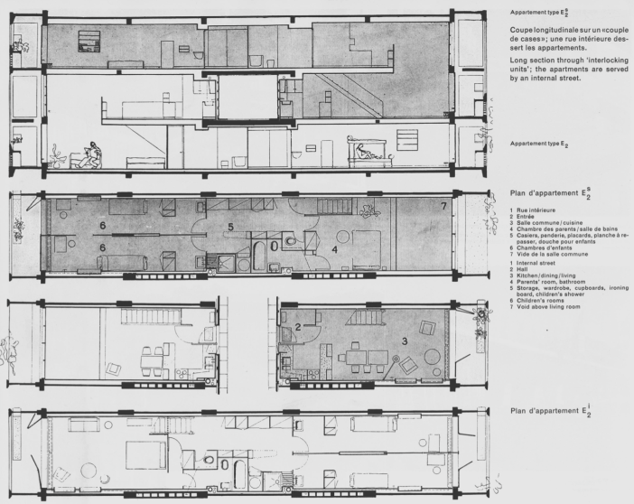
Among the innovations Le Corbusier took from Ginzburg was to raise the building up on piloti or columns, freeing up the space underneath as parking for residents’ cycles and motorbikes, as well as the entrance hall and fire escape. And since the building’s weight was taken by reinforced concrete columns, the walls were not loadbearing, which meant the windows could run along the length of the facade, maximising the amount of light, and the internal layout and size of the apartments could be varied. Apart from the 31 units on the narrow south end of the building, the bulk of the apartments are dual aspect, and open onto balconied terraces facing east and west, allowing cross-ventilation during the Marseilles summers. Each of these units occupies 2 floors of an interlocking 3-storey module, which is the basic building block of the structure – another influence from Ginzburg – and which are entered from an internal ‘street’ running though the centre of each module every three levels, reducing the number of internal corridors.
The building contains five rows of these modules, but between the second and third rows, along the 9th and 10th floors, guest rooms run south from the off-centre elevator shaft, while to the north are the public and commercial facilities. Comprising the centrally located restaurant, shops and offices, these run alongside an internal ‘high street’ that faces west, and from which an external fire escape descends on the otherwise blank north wall. Perhaps the building’s greatest innovation, however, and which sets it apart from the Narkomfin building, was its size. At 165 metres long, 24 metres wide and 56 metres high, the Housing Unit contains 337 residential units ranging from 1- to 5-bedroom apartments, and can house up to 1,600 residents. Drawing on his 1924 urban masterplan Ville radieuse, in which he had proposed building standardised apartment buildings whose units would be assigned by family size rather than by income or social position, Le Corbusier called the Marseilles building Cité radieuse – the ‘Radiant City’.
Far from imposing a monotonous or repetitive design on them, the original residents of the Radiant City were offered a choice of 23 different configurations of these units, as well as what colour was used on their interior design. In the guest room we stayed in – which felt a little like being inside a painting by Piet Mondrian – that colour was red: on the bathroom tiles, the bookcase, individual walls panels, and on the bathroom and entrance wall. The door itself was emblazoned with the black shape of the ‘Modulor Man’, a male figure with one arm raised that was also carved into the east wall of the ground floor and cast in concrete in the surrounding park. It was from this figure that Le Corbusier derived the anthropometric scale of proportions governing the plan, section and elevations of the building, its piloti and roof, as well as the plan and section of the apartments.

Some of the residents open up their homes to the visiting public, which gave us the opportunity to see inside Le Corbusier’s ingeniously conceived apartments, whose interiors were designed by Charlotte Perriand with fittings by Jean Prouvé. The apartment we saw was the bottom unit in its module, so we entered on the upper floor, into the open-plan kitchen and dining room. The kitchen was a marvel, with sealed surfaces of zinc and compact storage solutions years ahead of its time. However, the mezzanine that originally overlooked the double-height living room below – another influence from Ginzburg – had been extended to form a combined dining and living room on the upper floor, closed off from the floor below; and descending the stairs we found the master bedroom had been similarly extended to include the former living room. The reason for this modification, the resident told us, was that the original master bedroom was at the interior of the double-height living room – almost like a bedsitting room – and she preferred the privacy of the larger bedroom she now had, which still opened out onto the balconied terrace. Apparently this modification, which lost Le Corbusier’s double-height living room, had been repeated in many of the Housing Units’ apartments. This was less of an issue with the top units, where the entry was on the bottom floor, as the double-height living room was an extension of the kitchen and dining room, while the master bedroom was located on the mezzanine above.
The ensuite bathroom, children’s shower room, toilet and generous storage space on both the top and bottom flats are located, respectively, above and below the internal street. On the further side of this are the remaining sleeping quarters. In the apartment we viewed this space was divided along its length into two long, rather awkwardly proportioned bedrooms, the reason for this being that both thereby had access to the shared terrace. To ameliorate the narrowness of the rooms the panels of the dividing wall slide back into themselves to expose a shared living space at the terrace end. Both bedrooms have their own sinks and privacy when required, which would doubtless be of increasing value as children turn into adolescents; but like the rest of the open-plan apartment – and indeed the whole building – they encourage a more communal form of living.

To our eyes, one of the most attractive aspects of the the Radiant City is its exposed concrete on both the external and internal walls, the latter of which are faced with pebble-dash panelling in the communal areas. Regularly cleaned and maintained as any building material should be, the concrete’s light, warm tones reflects the changing Mediterranean light, and bears the imprint of the timber panels into which it was cast, again reinforcing the impression of being in a huge wooden ship. Above all, the roof terrace is a magical space of neo-classical forms filtered through three decades of Surrealism, with extraordinary views of Marseilles to the north, the Massif des Calanques to the east and the Mediterranean to the west. Under the US Health and Safety culture that has colonised even France, every staircase, platform and wall bore a sign reading ‘Montée interdit’; but I’m happy to report that French children were rebelliously climbing and playing on every surface. One of the signs of successful architecture is its ability to encourage and cultivate social interaction and exploration in those who use it, which no threat of words can repress. This is the essence of what Le Corbusier’s model bequeathed to the world: housing not as the mass accumulation of poorly designed units they too often became in the hands of property developers interested only in turning a profit; nor as the deposit boxes in the sky they are being turned into by the financialisation of housing as a repository for capital; but as a new vision and model of communal living that is opposed to the building of housing as a property to own or a commodity in which to invest.
Unfortunately, not even the most visionary architecture can escape the greed of developers or illuminate the blindness of politicians. Although designed by Le Corbusier to be public housing, within only a few years the Marseilles Housing Unit had been privatised, its apartments sold on the market, and the hostel for guests turned into a hotel for paying customers. Then in 2013 the rooftop gymnasium was acquired as an exhibition space for an arts programme. The final nail in the coffin was driven in last year, when the building was listed as a United Nations Educational, Scientific and Cultural Organisation World Heritage Site. Today, the residents of the once Radiant City are all home-owners drawn almost entirely from the Marseilles bourgoisie – with architects, designers and artists disproportionately represented among its demographic. When we asked why this had happened, the woman who showed us around her flat – who was enormously proud of living in Le Corbusier’s Housing Unit and whose bookcases groaned with works on De Stijl, the Bauhaus and Modernist architecture – couldn’t answer us. Neither could the receptionist who sat at a table of books about the building. Nor can I find it mentioned in any of the online writings about the Marseilles Housing Unit. The fetishisation of the Unité d’habitation in both architectural discourse and public perception alike – its formal innovations, imaginative use of materials, design principles and construction techniques – has completely occluded the purpose these innovations were meant to serve: to mass-produce high-quality housing for the working and lower-middle classes. Le Corbusier was certainly no socialist, and his writings on urban planning are a blueprint for the social cleansing of our inner cities; but his most influential building has lessons to teach us not only about how to design such housing, but how vulnerable it is to capitalism. No genuine debate about the future of public housing can be separated from the struggle for the economic and social system under which that housing can be built, lived in and maintained.
North Facade
East Facade
South Facade
West Facade
Piloti & Undercroft
Entrance & Reception
Internal Streets
Hotel Room
High Street
Restaurant
Apartment
Roof
Views of Marseilles
Architects for Social Housing



































































































































