
This meeting of ASH was devoted to Central Hill estate in Crystal Palace, for which ASH is currently assembling a team to design an architectural alternative to demolition.
The focus of the meeting was the presentation by ASH member Viola Petrella of her extensive work on Central Hill. Coming out of her consultations with the Central Hill community, she put forward proposals by residents for how to contest the demolition of their estate, as well as possible initiatives to make the estate a better place in which to live. The discussion these proposals generated between residents and ASH members generated further ideas about how we can save Central Hill estate and its community.
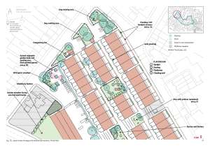
The above diagram is a summation of her approach. Where other architectural practices, including those working on Central Hill (PRP Architects), come into estate regeneration with a fixed set of objectives – which is the demolition and rebuilding of the existing estate – and then use the consultation process to generate the reasons and excuses to achieve this, the ASH model starts by asking the community about their needs and wishes, and uses these to generate objectives and initiatives to bring this about. As the diagram illustrates, it is a process that moves from inside to the outside, from the community to genuine estate regeneration – one that leaves the existing community intact.
Architects for Social Housing























