Over the past few years, Architects for Social Housing has increasingly explored alternative ways of funding and building social housing to the current mainstream of local authority and housing association, which is signally failing both existing residents and those in housing need.
In accordance with the neo-liberalisation of housing provision in the UK, housing associations currently only provide 14 per cent of their housing for social rent; while the ongoing estate demolition programme, embraced by every council in London and increasingly by councils across England, means that local authorities are demolishing far more social housing than they are providing, replacing it with market-sale, market-rent, shared-ownership and other so-called ‘affordable’ housing products.
In addition to this demolition, sale and conversion of social housing by these nominal ‘Registered Providers’, in June 2017 the Grenfell Tower fire revealed the importance of the relationship between residents of social housing and their landlord, casting a deadly light on the absence of agency residents have to engage with and influence the maintenance and safety of their homes. The structure of the Kensington and Chelsea Tenants Management Organisation was exposed as catastrophically flawed as a mechanism through which to ensure residents’ needs are listened to and met by landlords and local authorities.
Co-operative housing, by contrast, is managed — and sometimes partially owned — by the residents themselves, and therefore offers potentially interesting solutions to some of the problems of unaccountable landlords, sloppy, withheld or dangerous maintenance, and our rapidly dwindling stock of social housing.
Historically, co-operatives in the UK provide only a small amount of social housing, with 0.6 per cent of all housing in the UK owned co-operatively. But this is not the case in other parts of Europe, where co-operative housing is a much more significant provider of social housing. Norway, for example, has 14 per cent of its housing provided by co-operatives.
The Patmore Estate in south London, which ASH has been working with over the past 3 years, is an interesting example of how the co-operative model could be applied to the management of a large council housing estate, in which residents form the co-operative board and oversee the management of their estate. The Grenfell Tower fire, and the deaths of 72 residents it caused, simply could not have happened under this structure.
In August 2017, during Architects for Social Housing’s residency at the ICA, members of the Drive Housing Co-operative attended some of the events we organised. ASH was subsequently approached by the co-operative to undertake a feasibility study for increasing the size of their existing housing. Our subsequent work with the Drive, which concluded in February 2019, was an opportunity for us to explore how the co-operative model might provide social housing which — unlike both council and housing associations — is not only managed by its residents but also designed to meet their housing needs.
1. The Drive Housing Co-operative
The Drive Housing Co-operative, located in Walthamstow in North-east London, is an 11-bedroom, fully-mutual co-operative and an intentional community that was established in 2010 through the purchase of what had been a respite care home for disabled children. Originally a large Victorian villa, it presumably no longer met the required standards for a care home for disabled children, and had subsequently been occupied by property guardians until purchased by the Drive Co-operative. The building, at no. 8 The Drive, is a 3-storey detached house, the last of what was once a row of detached villas built along the street in the 1880s.
A co-operative is a very flexible constitutional form for the management of housing, as it can encompass a wide range of ownership and management choices. In this case, the house is owned privately by the co-operative, the members of which are therefore simultaneously both landlords and tenants. The Drive is not a Registered Provider (RP) of social housing, so the rents are, in effect, private rents. However, levels are set by the members, and are set as low as is financially possible. With 11 current residents sharing the facilities, the Drive is designated as a House of Multiple Occupancy (HMO), and is required to maintain appropriate standards in relation to fire and insurance; but in many other respects the co-operative form is more flexible than traditional HMOs.
The Drive is not only a co-operative but is also co-housing, in which residents share facilities such as bathrooms, kitchens and living spaces. This project, therefore, was also an opportunity for ASH to explore what is at risk of becoming — in the form of ‘The Collective’ and other similarly profit-driven entities — a cynical opportunity to make more money through reduced space standards and amenities. Co-housing is not an easy model, demanding concerted collaborative efforts to live together and share facilities on the part of the residents. It requires generosity, patience and a will to participate that many people do not have; but the benefits in an era of increasing loneliness, isolation and rising housing costs are considerable.
One of the benefits of working with existing housing co-operatives is that they often own their own land — access to which is one of the biggest stumbling blocks to the creation of new housing, and the single most expensive component of the development process in London. However, although the Drive owns the land, unlike many co-operatives — which purchased or acquired their land cheaply or many years ago — they are still paying off a decent-sized mortgage that doesn’t permit them to borrow considerable additional loans to fund new development.
In terms of delivering new housing, the co-operative model tends to be small in scale in comparison to local authority or housing association models, which in contrast are increasing in size and merging to create larger and less accountable organisations. The London Mayor’s Small Sites x Small Builders programme is aimed at engaging with this growing co-operative sector, as well as the relatively new Community Land Trust (CLT) model, whose potential relationship to the co-operative model ASH has explored in our work with the Brixton Housing Co-operative, and written about in our article What is Community-led Housing? Proposal for a Co-operative Housing Development. Our design work for the Drive, therefore, also meant engaging with the Greater London Authroity’s funding streams.
The Brief
Once ASH was appointed for the feasibility study, we started by holding a number of workshops to interrogate the brief with the client, which in this case was the co-operative residents. This helped us to understand the motivations for the development of the Drive, so that we could make the most informed proposals and recommendations.
The briefing process is a crucial element to get right, because it sets up the criteria, principles and ambitions for the whole project. The brief needed to reflect both the needs of individual members as well as the broader ambitions of the co-operative, and the design proposals needed to translate these co-operative values and ways of living into architecture — spatially, materially and formally.
The Drive Co-operative had a reasonably large mortgage, which meant residents’ rents were more expensive than social rent levels. At present, therefore, the rents were too high to accommodate people on, for example, disability benefits. This was something the existing residents were keen to address. In addition, the co-operative members wanted to do what they could to help people on low incomes during this crisis of affordability in London’s housing. By expanding the co-operative, they aimed both to increase its housing capacity and to lower the rents.
Finally, the residents were intent on improving the environmental properties of the existing house, thereby bringing their monthly outgoings on heating, etc, down, as well as reducing their energy consumption and the co-operative’s carbon ‘footprint’.
The Consultation Process
Working with a small co-operative whose collective prior experience of construction projects was very limited, and in which the decision-making process was by consensus, was always going to be a slow process, and so it turned out. However, it was crucial that residents fully understood the constraints and opportunities for their site, brief and budget, and the relationships between these. This takes time, but residents needed to understand the consequences of their decisions, if they were to take an informed and active role in the design and decision-making process. This is a fundamental principle of ASH’s design and consultation practice.
Co-production of the Brief
Over an 18-month period, ASH conducted 8 workshops that ranged from a half-day to a full-day. Together, these helped us learn about how residents used the various spaces, their priorities and ambitions for the project, as well as their fears about the process. At the same time, this allowed us to communicate to residents our observations and recommendations about how they might achieve their ambitions in terms of material, space, cost and time.
The brief we eventually arrived at had the following priorities:
- To lower rents to Local Housing Allowance (LHA) rates, which are currently £77.40/week for shared accommodation. It may be necessary to explore a range of rents if this is not achievable.
- To make buildings as environmentally sustainable as possible, by using low-environmental-impact construction while minimising construction waste, water consumption and potentially harmful impacts on health.
- To create energy-efficient buildings that both reduce residents’ housing costs and reduce emissions, through, for example, solar panels, tesla tiles, rain-water collection, grey-water harvesting, recycling, waste disposal, etc.
- To add 8-10 bedrooms @ minimum of 13 square metres, with final room sizes to be explored in more detail as the project develops.
- To add 2-3 guestrooms @ approximately 9 square metres.
- To allow for one family ‘unit’, which could be the connection of 1 bedroom, 1 guestroom and 1 bathroom.
- To design 1 large dining room for the whole community, able to accommodate 20 people ‘from time to time’, with the potential for a connecting corridor to a conservatory or green house.
- Each of the 2 resulting houses to accommodate, as a minimum: 1 bedroom, with ensuite, on the ground floor of each building for disabled access; 1 large kitchen, with space for 10 to sit and eat, plus personal food storage; 1 large communal living room; 1 bathroom, 1 shower-room and 1 WC per floor or 4-5 bedrooms; with laundry and drying space; storage; and bicycle storage.
- As the budget allowed, additional multi-use communal spaces could be provided to accommodate a range of activities and be adaptable as needs change, with the potential to include a range of dirty, clean, quiet and noisy spaces: e.g. a music room; a quiet room; an art studio; a workshop; a games, TV and film room; a studio, office or work space.
The Design Process
One of the benefits of co-housing as a model for living is the opportunity for a more efficient use of space and facilities than is available in smaller dwellings, and therefore for the possibility of additional facilities. A 1-bedroom home is facility-intensive, requiring a fully-equipped bathroom and kitchen for just 2 people. In a shared space, in contrast, the same facilities can be shared more widely, enabling the remaining space and budget to provide additional facilities, such as cinema or music rooms, meeting rooms, and so on.
Over the course of the year, ASH explored with the residents several development options. These ranged from a light refurbishment of the main house all the way to its complete demolition and rebuild, with a range of options in between, roughly shown as follows.
Refurbishment or New-build?
The fundamental debate with residents, however, was about whether to refurbish the existing house or to demolish and rebuild it. This was complex, and touched on a range of considerations.
First, there was the consideration of environmental sustainability, with the carbon embodied within the existing building lost in the event of its demolition. The counter argument to this was that the existing building was extremely leaky and required considerable energy to heat, and was therefore a very environmentally inefficient building that would require considerable remedial work to improve its environmental performance. This had consequences for the cost of heating the building on a daily basis, as well as the general maintenance in the long-term, as the building is approximately 150-years old.
A further consideration was of the architectural and historical qualities of the house and the impact of any changes to the site on the neighbourhood and the street in particular. As one of only a few houses of its period left on that street, there is a historical value to the building’s fabric. However, it was felt by the majority of residents that, if it came to such a choice, the functional and occupational value of the house would ultimately outweigh its historic value. Some of the residents expressed nostalgia for the existing building, even with all its flaws, which contained many memories for them. We discussed the fact that, in order to achieve their brief, all but the lightest refurbishments would leave very little of the existing building intact. If they were serious about improving the building’s environmental performance, then some form of external insulation would be required, and this would probably conceal all visible bricks and architectural details on the outside of the building. Insulating internally was an option, but the reduction in room sizes and the inefficiencies and technical issues around floor junctions meant that this was not ideal or likely to be pursued. Furthermore, in order to meet current regulations for ‘Housing in Multiple Occupation’, substantial changes would need to take place to the internal fabric, so much of the internal finishes were unlikely to remain.
We then discussed the aspects of the building that the residents valued. These included its material and architectural qualities, but ultimately rested firmly on the sustainability of the building, both economically and environmentally, its function as a housing co-operative, and the shared values this embodied. As a compromise, we suggested that, as part of a new-build option, it would be possible to re-use the existing brick, and to ensure that the new building made reference to the old.
2. The ASH House
Discounted Design Options
The first design options ASH considered were essentially extensions to, or reconfigurations of, the existing house.
Option 2.1 (above) proposed extending the existing house with a new west wing. Although it would be possible to phase the construction so that the residents could remain in the existing house during construction, it would be difficult to isolate the construction site from the existing house completely, which would be disruptive for the residents in terms of noise and dust. The form and resulting mass of the proposed building was also not ideal, as the new wing would sit to the south-west, shading both what remains of the garden and the south of the house from the afternoon sun.
Option 2.2 (above) explored the option to create three interconnected ‘houses’ on the site of the existing house. This would, potentially, increase the financial value of the site in terms of its resale price, but would also be the most expensive option in terms of construction. As with the previous option, it also offered limited opportunities for phasing construction, meaning that some, if not all, residents would need to move out to alternative accommodation for a time. The residents felt this was critical, as they were keen for the community not to be dispersed during the project. This would also present additional financial burdens for them.
The House in the Garden
On consideration of the orientation of the site, the phased process of construction, and the budget — which required the residents to remain on site during construction where this was possible — ASH proposed the idea of building a new and totally separate house in the garden of the site. This had many benefits, from the point of view of raising funds and releasing equity for the project, as well as the fact that the construction site would remain entirely separate from the existing house. What became known as the ‘House in the Garden’ option could also co-exist with and complement either of the two options to refurbish or rebuild the Main House.
The House in the Garden provided an additional 8 bedrooms, of which 2 rooms on the ground floor were potentially allocated for disabled residents. Once completed, the existing residents would be able to move into this new house, and either the refurbishment or the demolition and rebuilding of the existing house could then take place with minimal disturbance to them.
In addition to the benefits of phasing, having two separate houses, rather than a single large building, has practical and organisational benefits. More than 10 or 11 people — the size of the current household — cannot easily gather in a single room at the same time or take part in a single conversation. The residents often talked about how the number of people affected the ways in which the community worked together. Larger groups naturally tended to split into smaller sub-groups, and they felt that 11 was the maximum number of residents that could live together in a single house. They therefore thought that a single house of 20 residents could easily become unwieldy and anonymous, and lacking in the sense of belonging that two separate houses could engender. With the addition of a single new house for 8 residents, the existing systems of management of the spaces, which the residents felt worked well, could continue in each house. The co-operative would then consist of the two houses, with the courtyard, garden and other facilities shared between them. Two separate houses also gave the Drive the option, should it come to that, to sell the house in the garden — which could easily be reconfigured as a large family home or remain as a shared house — to fund works to the Main House.
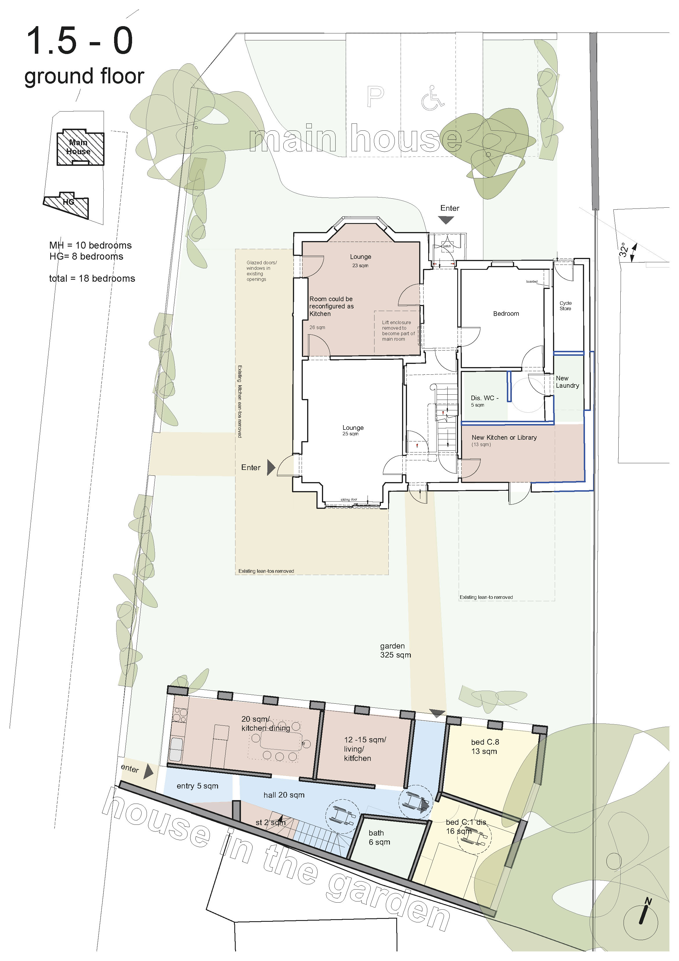
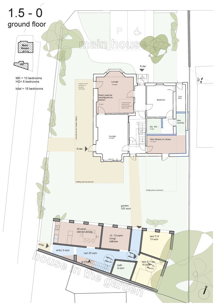
Option 1.5. Refurbishment of the Existing House plus House in the Garden
The quantity surveyors for the project, Robert Martell and Partners, carried out a stock-condition survey of the existing house; and together with the structural survey already undertaken, ASH assessed the refurbishment needs of the main house. These ranged from 1) Essential, to 2) Basic-desirable, 3) Additional-desirable, and finally 4) Additional-accommodation. 1) Essential included only basic repairs and upgrades to the existing building fabric to meet current fire and other regulations. 2) Basic-desirable included replacement windows and some internal insulation. 3) Additional-desirable included replacing all the heating and electrics. And 4) Additional-accommodation included underpinning, adding an additional floor, and external insulation.
The first option, for the ‘Essential’ refurbishment of the Main House, in conjunction with the construction of the House in the Garden, is by far the cheapest option, and was therefore the most likely to be pursued by the residents. However, in the long run, the running costs and maintenance of a new-build house would be considerably lower, and the new-build house would have a longer life-span of up to 160 years; while the life-span of the refurbished existing building was indeterminate. ASH therefore recommended the new-build option for the Main House.
Option 2.5. New-build Main House plus House in the Garden
ASH’s final design proposal was for two buildings connected by a colonnade around a central courtyard. Each building is self-contained, with all the living spaces necessary for that particular house; but the shared spaces would vary depending on their location, orientation and size, and be available to residents of either house. These included small, more intimate and quiet spaces for watching TV or reading a book; somewhere to watch, for instance, the sunset overlooking the street; places to meet in a louder group; and places to eat both together or alone. Access to privacy is paramount in a shared house, so designing a variety of places to suit different moods, times of day and social needs is crucial to creating a healthy living environment.
Ground Floor
The west side of both houses faces the afternoon sun and the street, and so presents the most public façade of the buildings. By relocating the entrance to the homes away from the north of the Main House to the west of the central courtyard, ASH hoped to create a sense of collective belonging to the larger co-operative, while retaining the smaller and separate communities and identities of each house.
Referencing a traditional form of communal living — that of the cloistered monastery — the columned courtyard would connect the shared spaces in each building, including both kitchens, dining rooms and living rooms, as well as the staircases, lifts and hallways.
The ground floor is designed to enable a mixture of changing uses. The large dining space in the Main House can accommodate the whole co-operative of 20 people eating or meeting together, be turned into a flexible work space during the day time, or could be partitioned off acoustically to provide a number of different spaces and uses at the same time. Access to the shared ground-floor rooms could also be secured, so that these spaces could be accessed from the street and, for example, hired by community groups as an option to produce additional rental income for the co-operative.
In order to support the potential for change of use over time — another ASH design principle — the structure was also designed to allow for as much flexibility as possible, with a central lift and stair core, and a frame with acoustic partition walls, as opposed to structural walls that would be less flexible.
For funding purposes, as well as in consideration of future changes to use, ASH also conducted an exercise to demonstrate that the new-build Main House layout could be reconfigured, if necessary, into individual flats.
There was the opportunity to provide individual balconies for each of the bedrooms in the main house; but residents felt these would not encourage collective activities. Balconies were also judged to be an optional expense, so were removed from the final design. However, these could be reinstated at a future date — for example, if the house had to be converted to individual flats, or if private outdoor space became desirable for future residents.
The ground-floor layout of the House in the Garden mirrors that of the main house, with the kitchen, dining and living spaces all facing across the courtyard, and the bedrooms occupying the quieter spaces to the east, overlooking a small garden area. The stairs and services run along the boundary wall to the south, and are lit by a roof light.
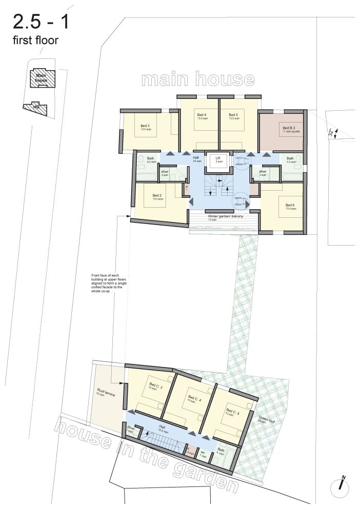
Upper Floors
The upper floors of the Main House are designed as two ‘wings’ around a central lift and stair core, and share a south-facing winter garden or balcony. This communal space is intended to be a place where people meet and to encourage a sense of belonging, while the provision of smaller living wings is designed to facilitate smaller groups within the larger community.
The House in the Garden is designed to be as slim as possible, so as not to take up any more of the garden space than is absolutely necessary. Locating it in the southern-most part of the garden might at first seem an odd choice, but the sun is at its highest in the south, and the position of the House in the Garden maximises the sunlight into the garden and has the least negative impact on the Main House.
One way in which the new-build Main House could retain a memory of the existing house is through reusing the existing bricks, with the option to reference the existing roof forms on the new facade (shown in some of these images).
Finally, therefore, although the refurbishment of the existing house was an option, there were decisive reasons why ASH thought the new-build option was preferable.
- Through moving the main house slightly to the north and west of the site, we were able to free up more garden space, thereby creating more space between the new House in the Garden and the rebuilt Main House. This was preferable, both in terms of privacy, with a greater distance between windows in each house, and of the amount of light falling into both the garden and the spaces facing the garden.
- Because of its position on the corner of two streets and the diverse nature of the surrounding buildings, which include a school and a number of flat blocks, we believed the new-build Main House had the option to add a third floor, which would add further living accommodation either now or in the future.
- The quantity surveyors for this project, Robert Martell and Partners, have demonstrated that, given the constraints of the existing building, the costs of significant alterations or improvements to the Main House would be equivalent to the costs of a new build, with the final product significantly inferior in terms of construction quality, environmental performance, sustainability, lifespan and running costs.
- Despite its greater initial cost, Option 2.5 would have been financially viable for the Drive Housing co-operative if the residents had been more willing to explore the range of funding revenues available from the Greater London Authority.
3. Delivering the Project
Whatever option the residents chose, the decision to build the House in the Garden was an obvious one and — as designed by ASH — it is possible for it to work with both the refurbishment of the existing Main House, or with its demolition and replacement with a new-build residence designed specifically for the needs of present and future residents. In addition, the phasing requirements of construction meant the decision to refurbish or demolish the existing house did not need to be made immediately. There would, however, be implications for planning approval, as well as for funding, as the GLA would not provide funding towards the design fees on the refurbishment of the Main House, while they would support the design fees for a new-build co-housing residence.
Funding
ASH established that the first phase of funding was available to the Drive Housing Co-operative through the Community Housing Fund, which is supported by the Greater London Authority, and would fund up to 90 per cent of the fees for the project, including planning and building control, architectural design, structural engineers, quantity surveyors and other consultants.
For the construction costs, ASH explored a range of funding mechanisms, from re-mortgaging the House in the Garden once it was built, to selling off a part of the site to raise funds.
ASH also investigated the consequences of the co-operative becoming a Registered Provider (RP) of Social housing. This would potentially enable the Drive to apply for grants towards the construction costs of the new social-rented housing, but would also mean that the management of the housing co-operative would be regulated by the Homes and Communities Agency.
ASH also investigated acquiring loan stock from other housing co-operatives, or even going into a partnership with other co-operatives should the budget demand it.
Construction Options
ASH explored a range of material and construction options, ranging from pre-fabricated methods such as Cross-Laminated Timber — which would enable a reduced construction programme, less waste, and the potential for a higher-quality product — to self-build.
Although the existing residents of the Drive did not particularly favour self-build, it is entirely possible that residents of the House in the Garden might have done; and we thought that an opportunity for future residents to get involved in the project at the construction stage would bring many benefits. It would establish relationships between new residents and the existing members of the co-operative at an early stage; it would bring the costs down for both the self-builders and overall; and it would create a sense of belonging and agency over the project and community.
Sustainable Design and Renewable Energy
Since the environmental performance of their future home was of great importance to the residents, thinking around sustainability permeated the whole design process. Such considerations included the choice of materials and means of construction; design layout and reducing energy use; renewable energy production, recycling and sustainable water use; as well as wider considerations about sustainable living, such as the creation of bio-diverse landscapes and the possibility of residents growing their own food.
Planning and Legal Framework
The project at the Drive qualifies for funding from the GLA’s Small Sites x Small Builders programme, which is described in the London Plan as a strategic policy to deliver more housing in London. In our estimation, this project would have been looked upon favourably in planning terms. Sited on a street corner and opposite a school, and surrounded by a variety of buildings at a range of scales, the site, as we have said, could accommodate an increase in housing density, and had the potential for increased community use if that were so desired.
In anticipation of planning obstacles, ASH anticipated a range of issues around planning, specifically addressing issues such as privacy and overlooking, neighbours’ right-to-light, and overdevelopment, as well as minimum standards for room sizes and outdoor space.
Procurement
ASH explored a range of procurement options, from traditional to design-and-build, management contracts and self-build, as well as a partnering contract, which we felt would help to introduce a collaborative rather than an adversarial approach to the contract. This was important in meeting the co-operative development principles, which we felt would be essential to the successful development of the project.
Local Community Engagement
Once the Drive Housing Co-operative indicated which option they were likely to choose, ASH was keen to initiate conversations within the local neighbourhood about ways in which the development could contribute to the local community. Due to the shared nature of the housing, there is the possibility for rooms or facilities to be rented out to the local community for meetings or other activities; and as soon as the initial decisions had been taken we were keen to engage with the immediate and wider community of neighbours.
The Residents’ Decision
As is the case with the majority of architectural projects, the cost of delivering the brief desired by the client was more than the co-operative had originally budgeted, so ASH needed to explore ways either to cut the costs or to revise the brief.
Certain capital funding revenues, which we had identified were available from the GLA, were contingent upon the Drive becoming a Registered Provider of Social Housing. However, the residents felt this could potentially open them in the future to problems associated with the Right-to-Buy, with social-housing tenants able to purchase their homes and in doing so destroy the entire ethos and structure of the housing co-operative. In addition, residents felt it would encumber them with bureaucratic burdens, restrictions and obligations they currently don’t have, and potentially force organisational and cultural changes to the housing co-operative they didn’t want to make. On consideration, therefore, they decided the conditions attached to these sources of funding were not acceptable.
In addition to these reservations, the uncertainties and anxieties that come with such a large project, especially for an inexperienced client, meant that the Drive residents were keen to find a single organisation that would take the project from planning to completion. The Drive therefore decided to complete the project by taking forward the ‘House in the Garden’ option working with a low-cost, low-carbon, design-and-build, prefabricated timber-frame ‘kit’ package, combined with the low-impact refurbishment of the existing house. This appeared to them to be the only strategy that was within their budget, without compromising or significantly altering the integrity of the existing co-operative organisational structure.
Conclusions
Working with a housing co-operative that operates by consensus on a significant building project was always going to be a slow process. With the majority of them having little or no prior knowledge or experience of development projects, ensuring that all the residents understood the design, procurement and construction process took time and a detailed approach, which all consultants involved in the project needed to understand. Managing residents’ expectations is probably the single most important aspect of such a project, because shocks along the way can be extremely disruptive to what is a very delicate process. ASH provided as much information as we could to enable the residents to understand the options available to them, the consequences of the decisions they would make in terms of cost, time and realising their ambitions, and to make what they believed was the best decision for the future of the Drive Housing Co-operative.
Three conclusions can be drawn from this project:
1. Control
To qualify for funding from the GLA, the Drive would have had to become a Registered Provider (RP) of Social Housing. This contributed to residents refusing this source of funding revenue, as they initially feared they would be obliged to take into their home any individual randomly sent to them by the local authority, in this case Waltham Forest Council, without the option to refuse or choose their own candidate according to their own allocation policy on who could join their carefully balanced community. ASH was reassured by representatives from the Community-Led Housing hub of the GLA that this would not be the case, but the information on what precisely is entailed in becoming an RP was unclear, and the Small Sites x Small Builders programme should look to clarify this for small communities, or potential developers will continue to refuse possible funding revenues and the opportunity these present for increasing housing provision in London.
2. Funding
One of the decisive considerations in the Drive opting for a design-and-build ‘kit’ package was the cost. In actual fact, GLA funding would have covered 90 per cent of the design costs, and allow the residents to have the more site-specific, resident-consulted design options proposed by ASH, rather than a one-size-fits-all compromise. The GLA should give consideration to making this crucial information clear to non-professionals trying to access public funds. This is crucial if the Small Sites x Small Builders programme really is to be accessible to co-operatives, as it claims, and is not merely public funding for professional property developers working at a small scale. There needs to be far greater clarity and transparency about funding options for the numerous small communities and co-operatives considering expanding their housing provision in London.
3. Design
The Drive turned out to be an exemplary application of the ASH principle, which we have laid out in For a Socialist Architecture, that refurbishment must be the default option in any housing project, but that its social, environmental and economic benefits over demolition and rebuild should always be dependent upon the particular circumstances, with the finances and wishes of the existing residents the deciding consideration in which option to choose. In the case of the Drive, not only was demolition and rebuild more environmentally sustainable, but it was more socially beneficial to both the existing and future community. In addition, these were the design principles ASH applied to this project:
- Ensure that the resident, end-user or community has a leading role in the procurement, design, construction and management of the project, and that the housing and communal needs of the existing residents are met by the brief.
- Re-use, extend and improve the existing architecture.
- Ensure the layout of spaces encourages social interaction and community
- Maximise shared resources and the use of recycled, locally-sourced and zero-carbon materials and construction methods.
- Design for inter-generational and long-term communities, and try to anticipate future changes to use.
- Design with the construction process, prioritising the health and well-being of those working on the project at any stage.
- Create equality of access to all amenities.
Collaborators and Consultants
- Jon Broome Architects, which had advised the Drive Housing Co-operative the previous year, attended some of the early workshops with residents, and advised ASH on issues of affordability and self-build construction.
- Robert Martell and Partners worked with ASH as quantity surveyors to cost the proposals, as well as to conduct conditions surveys of the existing building in order to assess the needs and costs of various degrees of refurbishment.
- Tom Robertshaw was consultant structural engineer for the project, and provided invaluable advice on the structural condition and interventions within the existing building.
- ASH director Leonie Weber was lead designer on the project, bringing a wealth of knowledge about — as well as her experience of living in — co-operative housing projects.
- ASH director Geraldine Dening was lead architect on the project.
Architects for Social Housing





























2 thoughts on “ASH House: Design Options for the Drive Housing Co-operative”